Naturheilpraxis Linda, Bernau

Aufgabe:
Ausbau eines leerstehenden Untergeschosses zur Naturheilpraxis mit Wohlfühlambiente und gesundem Raum- und Strahlungsklima für Mitarbeiter und Patienten.

Realisierung:
Erstellung einer geomantischen Analyse als Grundlage der Raum- und Gestaltungskonzepte.

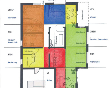
Die Räume sind funktionell und entsprechend einem individuell auf die Eigentümerin und den Ort entwickelten Raumorganogramm eingeteilt und gestaltet worden. Das Farbkonzept und die Materialwahl mit Möbeln aus Birnenholz, Schieferboden, Kalkputze, Sandsteinbrunnen bringen eine harmonische und aufbauende Schwingung in die Praxisräume.

Die Verwendung baubiologischer Materialien garantiert ein schadstofffreies Raumklima. Abgeschirmte Elektroleitungen und der Verzicht auf Schnurlostelefone und W-Lan tragen zur Vermeidung von Elektrosmog bei.

Nach Fertigstellung der Bauarbeiten wurden Energiearbeiten zur Neutralisierung störender Schwingungsfelder und zur Aktivierung von Kraftplätzen durchgeführt.

Leistungen:
Geomantische und radiästhetische Analyse
Raumorganogramm für optimalen Energiefluss und Raumaufteilung
Entwurfs- und Genehmigungsplanung, Bauüberwachung
Baubiologische Beratung
Farb- und Materialkonzept, Einrichtungsplanung individuell auf Inhaberin und Funktionsbereiche abgestimmt
Licht- und Wasserdesign mit Detailplanung zur Optimierung von Energie- und Geschäftsfluss
Räucherzeremonien und Erdheilung
Jährliche Betreuung durch Energiearbeit und Roomclearing